| 価格 | 400万円 ![]() |
||||
|---|---|---|---|---|---|
| 所在地 | 京都府宇治市広野町宮谷
この地域周辺の物件を見る |
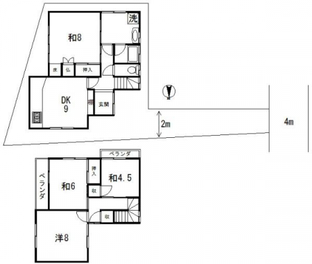
土地面積 | 167.43m² (50.65坪) | 建物面積 | 72.93m2 |
| 築年月 | 1975年8月築 | 間取り | 4DK (DK9/和室8/洋室8/和室6/和室4.5) | ||
| 交通 |
JR奈良線 新田/徒歩13分
近鉄京都線 大久保/徒歩15分 近鉄京都線 伊勢田/徒歩21分 |
||||
電話をかける(携帯・PHS可)
0120-121-021
「ホームページを見た」とお伝え下さい。
お問い合わせ番号をお伝えください
RHS-064001-37642
| 特徴 |
|
|---|---|
| セールスコメント | ※土砂災害警戒地域(急斜面) ※増築未登記あり |
| 採光面 | 東 | 構造/階数 | 木造/地上2階建 |
|---|---|---|---|
| 建ぺい率 | 60(%) | 容積率 | 100(%) |
| 駐車場 | なし | 現況/引渡し | 空家/相談 |
| 土地権利 | 所有権 | 私道負担面積 | - |
| 接道状況 | 接道: 西 2m 公道 道路幅: 4m | 用途地域 | 第一種低層住居専用地域
|
| セットバック | - | 法令上の制限 | - |
| 地目 | 宅地 | 地勢 | 平坦 |
| 建築確認番号 | 都市計画 | 市街化区域 | |
| 小学校区 | 中学校区 | ||
| 取引態様 | 専任媒介 | ||
| 情報更新日 | 2026年05月10日 | 次回更新日 | 2026年05月24日 |
電話をかける(携帯・PHS可)
0120-121-021
「ホームページを見た」とお伝え下さい。
お問い合わせ番号をお伝えください
RHS-064001-37642
| 年利率 | % |
||
|---|---|---|---|
| ボーナス払い | 返済年数 | ||
| 頭金 | 直接入力する | 万円 | |

毎月のご返済額 |
ボーナス(×年2回) |
物件価格400万円 |
電話でお問い合わせ
株式会社ライフ住宅販売
|
電話をかける 0120-121-021 ※「ホームページを見た」とお伝えください。 |
お問い合わせ番号をお伝えください RHS-064001-37642 |
|---|
■自然豊かな閑静な住宅街です。
■高台につき、日当たり眺望良好
■リフォームのご相談、承ります