| 価格 | 4,480万円値下がり ![]() |
||||||
|---|---|---|---|---|---|---|---|
| 所在地 | 京都府京都市下京区朱雀分木町
この地域周辺の物件を見る |
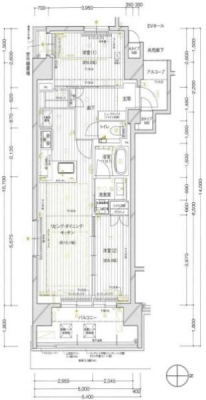
専有面積 | 68.83m2 | 間取り | 3DK (LDK16.1/洋室6/洋室5/和室4.56) | ||
| 交通 | JR山陰本線 丹波口/徒歩7分
JR山陰本線 梅小路京都西/徒歩14分 |
管理費等 | 6,060円 | 修繕積立金 | 16,180円 | 所在階/階数 | 9階/地上10階建 | 築年月 | 2014年8月築 | バルコニー面積 | 14.43m² |
電話をかける(携帯・PHS可)
0120-121-021
「ホームページを見た」とお伝え下さい。
お問い合わせ番号をお伝えください
RHS-064001-37553
| 特徴 |
|
|---|---|
| セールスコメント | ポーチ面積約7.24平米・サービスバルコニー約4.7平米 ペット飼育:100円/月 |
| 採光面 | 西 | 取引態様 | 仲介 |
|---|---|---|---|
| 現況 | 空室 | 引渡し | 相談 |
| 総戸数 | 48戸 | 構造 | RC造 |
| テラス面積 | - | 専用庭面積 | - |
| 駐車場 | 有:14,000円/月 | 駐輪場 | - |
| 建物権利 | - | 土地権利 | 所有権 |
| 用途地域 | 商業地域 - - | 管理態様 | 管理形態:委託(通勤) 管理組合:なし 管理会社:グローバルコミュニティ(株) |
| 小学校区 | 下京中学校/ | 中学校区 | 梅小路小学校/ |
| 情報更新日 | 2026年05月15日 | 次回更新日 | 2026年05月29日 |
電話をかける(携帯・PHS可)
0120-121-021
「ホームページを見た」とお伝え下さい。
お問い合わせ番号をお伝えください
RHS-064001-37553
| 年利率 | % |
||
|---|---|---|---|
| ボーナス払い | 返済年数 | ||
| 頭金 | 直接入力する | 万円 | |

毎月のご返済額 |
ボーナス(×年2回) |
物件価格4,480万円 |
電話でお問い合わせ
株式会社ライフ住宅販売
|
電話をかける 0120-121-021 ※「ホームページを見た」とお伝えください。 |
お問い合わせ番号をお伝えください RHS-064001-37553 |
|---|
■ペット飼育課(規約有)
■LDに床暖房あり
■全室複層ガラス
■2014年9月築